


















1 / 2041 800 000 ₽
3-комн., 94 м², 3/51 эт.
- 3-комн.
- 94 м²
- 3/51 этаж
Москва, ЦАО, район Пресненский, Шмитовский проезд, 39к6
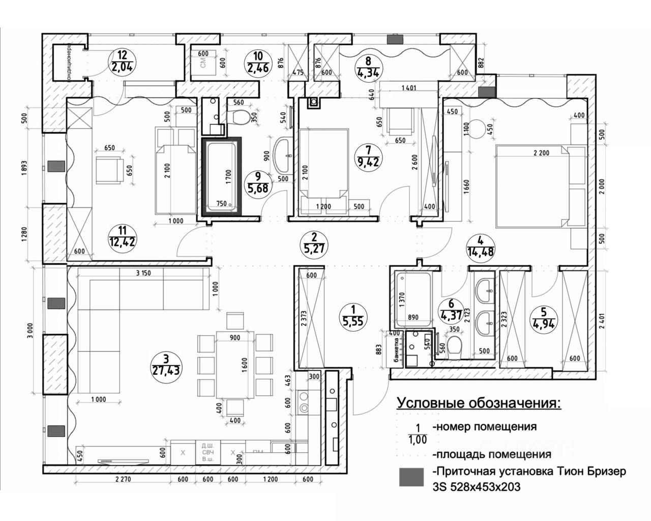
Продаётся 3-комнатная квартира евроформата в ЖК HEADLINER, общей площадью 94 кв.м., на 3 этаже, Без отделки. Высота потолков 3,4 м. 2 санузла. Просторная кухня-гостиная. Ниша для гардеробной. Окна в квартире выходят на разные стороны. Квартира готова к продаже: ключи получены, собственность оформлена, 1 собственник, полная сумма в договоре, возможна ипотека, 1 Собственник, квартира покупалась за наличные. Основные преимущества: - ЖК сдан в 2025 - Удобное расположение: близко метро, МЦД и центр города - 8 минут пешком до станции метро Шелепиха, Деловой Центр и Москва-Сити Большая кухня-гостиная площадью 19.9 м2 - Высокие потолки 3,4 м - 3 отдельные спальни - Большие окна квартиры выходят на 2 стороны - Виды: • на Москва-Сити • во двор - Гардеробная - Просторная ванная и дополнительный туалет, который можно переделать под дополнительную гардеробную. - Благоустройство внутренней территории: детские площадки, зоны отдыха, малые архитектурные формы, подземные паркинги. Площадь: 94 кв. м количество спален: 3 Площадь спален: 50,09 кв.м: 16,6 кв.м + 14,4 кв.м + 19,9 кв.м Нежилые помещения: 43,1 кв.м: Кухня-гостиная: 19.9 кв.м Прихожая: 5.3 кв.м, Холл: 5.7 кв.м Ванная: 6.1 кв.м Санузел: 2.7 кв.м Квартал HEADLINER входит в ТОП-10 самых продаваемых жилых комплексов бизнес-класса в Москве и признан одним из наиболее привлекательных для инвесторов объектов столичного региона. Расположение и транспортная доступность: HEADLINER расположен в престижном Пресненском районе Москвы, всего в двух минутах ходьбы от станции метро и МЦК "Шелепиха" и в 450 метрах от делового центра "Москва-сити". В 7 минутах пешком находится станция МЦД "Тестовская", обеспечивающая прямое сообщение с аэропортом "Шереметьево". Благодаря удобному расположению на пересечении крупных транспортных артерий, жители комплекса имеют легкий доступ к Третьему транспортному кольцу, Краснопресненской набережной, Кутузовскому проспекту и Большой Филевской улице. Инфраструктура: На территории жилого квартала работает филиал частной аккредитованной школы полного дня "Путь к успеху". Магазины, кафе и рестораны, банки, офисы и сервисные службы расположены на первых этажах зданий. В непосредственной близости можно найти лучшие школы ЦАО, включая ГБОУ "Романовская школа", физико-математическую школу 56 им. академика В.А. Легасова, школу с углубленным изучением английского языка 1232 "На Кутузовском", две гимназии и несколько общеобразовательных, спортивных и музыкальных школ. В пешей досягаемости находятся ТРЦ "Афимолл Сити", ТРЦ "Филион", ТРЦ "Европейский", фитнес-клубы World Class, и Wellness Club Nebo, отели Sky Moscow и Novotel, Экспоцентр и вся инфраструктура ММДЦ "Москва-Сити". Вблизи квартала расположены парк Причальный и Шелепихинская набережная. За 5-10 минут на автомобиле можно доехать до парков Фили, Красногвардейские пруды, Красная Пресня и парк Победы. До набережной Тараса Шевченко всего 8 минут пути, откуда открываются живописные виды на Headliner и Деловой центр.




























































































